Projekty budynków mieszkalnych
Zrealizujemy dla Ciebie indywidualny projekt domu jednorodzinnego, bliźniaka lub budynku wielorodzinnego. Wykonamy adaptację projektu gotowego i wprowadzimy w nim zmiany wg Twojej wizji.
Szczegóły oferty
Kompleksowy projekt budowlany domu jednorodzinnego
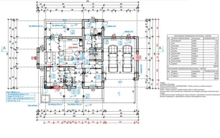
Sporządzimy dla Ciebie projekt budowlany i/lub konstrukcyjny wykonawczy, zrealizowany zgodnie z przepisami prawa budowlanego oraz wymogami urzędowymi – poparty niezbędną dokumentacją, a także opracowany przez architekta oraz projektantów branżowych z odpowiednimi uprawnieniami.
Przygotowany projekt budowlany domu jednorodzinnego to dokument, na który składają się rysunki, detale, opisy techniczne oraz uzgodnienia branżowe. Wykonanie dokumentacji projektowej warto zlecić specjalistom, którzy przygotują dla Ciebie profesjonalny projekt budowlany na podstawie Twojej wizji, wytycznych oraz informacji dotyczących przewidywanego rozmieszczenia pomieszczeń w budynku, cechach działki, odległościach, dojazdach, przyłączach itp.
W ramach projektu budowlanego domu jednorodzinnego wykonamy plan zagospodarowania działki zgodny z wymaganiami zawartymi w prawie budowlanym oraz miejscowym planie zagospodarowania przestrzennego. Nasi specjaliści sporządzą dla Ciebie idealny plan zagospodarowania działki, który pozwoli zlokalizować dom według Twojego uznania.

Projekty indywidualne budynków wielorodzinnych
Stworzymy indywidualny projekt budynku wielorodzinnego. Projekt wykonamy w technologii BIM, co przełoży się na oszczędności materiałowe oraz robocizny. Zrealizujemy projekt wykonawczy, który pozwoli na dokładne zrealizowanie wizji projektanta oraz inwestora i pozwoli uniknąć kosztownych błędów podczas budowy. Projektujemy budynki nowoczesne w technologii murowanej lub żelbetowej. Projektowanie rozpoczynamy od wizji lokalnej oraz uzgodnień z inwestorem. Podczas procesu projektowania optymalizujemy rozwiązania pod względem kosztów inwestycji oraz skupiamy się na spełnieniu wymagań dotyczących charakterystyki energetycznej obiektu zgodnie z warunkami technicznymi WT2021. Skupiamy się nie tylko na architekturze, ale również na konstrukcji oraz instalacjach tak, aby budynek spełniał wymagania pod względem bezpieczeństwa użytkowania oraz konstrukcji.
Zawartość dokumentacji
- Projekt zagospodarowania działki lub terenu (PZT)
- Projekt architektoniczno-budowlany (PAB)
- Projekt techniczny (PT)
- Projekt wykonawczy (PW)
- Przedmiary i kosztorysy inwestorskie dla każdej branży (opcjonalnie)

Projekty indywidualne domów jednorodzinnych
Wykonamy projekt indywidualny domu jednorodzinnego. Projekty wykonujemy w technologii BIM. Inwestor ma możliwość zobaczenia konstrukcji budynku oraz wizualizacji obiektu na każdym etapie projektowania. Projektujemy domy tradycyjne oraz nowoczesne w każdej technologii.
Podczas projektowania skupiamy się na osiągnięciu jak najlepszych parametrów energetycznych przy jednoczesnej optymalizacji kosztów budowy. Grubość izolacji oraz zastosowane technologie dobieramy tak, aby były zgodne z warunkami technicznymi WT2021 oraz dawały inwestorom korzyści w postaci niskich rachunków za ogrzewanie.
Zawartość projektu budowlanego
- Projekt zagospodarowania działki
- Projekt architektoniczno-budowlany
- Projekt techniczny

Adaptacja projektu domu jednorodzinnego
Zajmiemy się adaptacją projektu domu oraz wprowadzimy zmiany zgodnie z wizją inwestora. Wykonamy projekt zagospodarowania działki wraz z wszelkimi niezbędnymi elementami i urządzeniami wymaganymi do uzyskania pozwolenia na budowę. Zweryfikujemy możliwość posadowienia obiektu na działce inwestora. Przeanalizujemy możliwe opcje ustawienia budynku względem stron świata.
Zakres adaptacji projektu
- przystosowanie fundamentów obiektu do warunków panujących na działce
- zaprojektowanie usytuowania budynku zgodnie z decyzją o warunkach zabudowy lub miejscowym planem zagospodarowania przestrzennego
- określenie obszaru oddziaływania obiektu budowlanego
- plan zagospodarowania działki na mapie do celów projektowych
- wprowadzenie zmian w projekcie np. długości lub szerokości budynku, kąta nachylenia dachu, konstrukcji stropu lub więźby dachowej, wymiarów okien itp.


